телефон для связи
Перспективный район
современной многоквартирной и частной застройки
Транспортная развязка
рядом авто магистрали федерального и регионального значения
Парковка и хорошая видимость
обеспечивают комфорт для посетителей и арендаторов
100% заполнен арендаторами
преимущественно сетевыми компаниями федерального значения
Индексация арендного потока
на 5-10 % ежегодно
Долгосрочные договора аренды
гарантируют защиту ваших инвестиций и отсутствие простоя
6000 м2
площадь земельного участка
8329 м2
общая площадь объекта с магазинами
100%
заполненность арендопригодной площади
4
уровневый объект делового управления

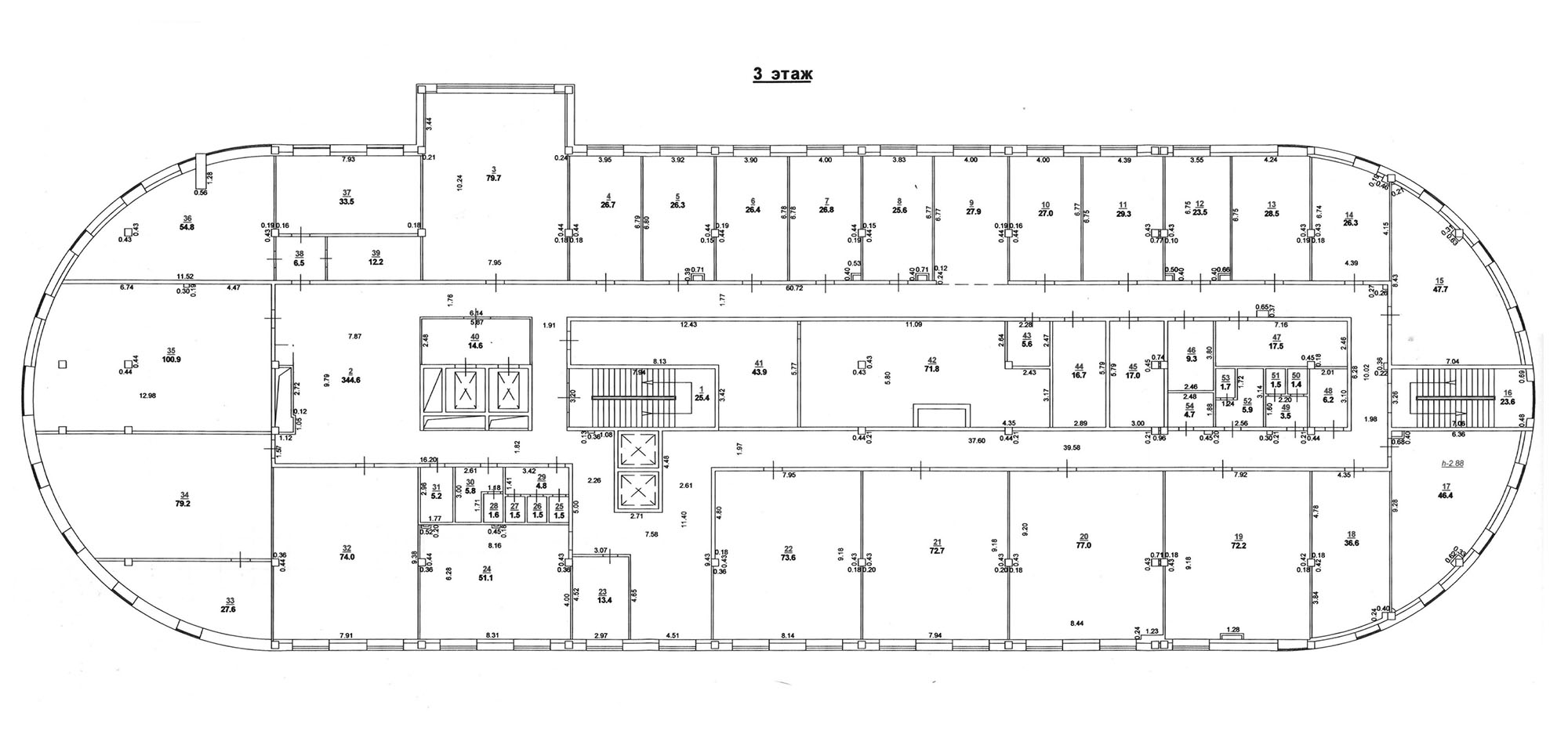
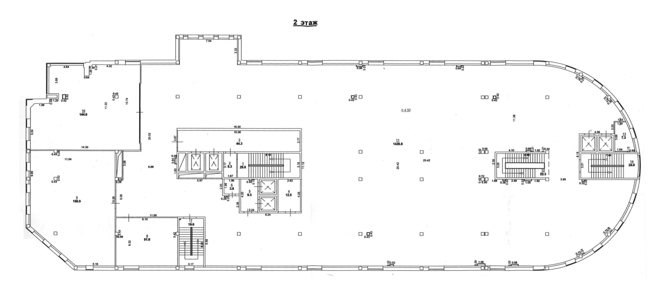
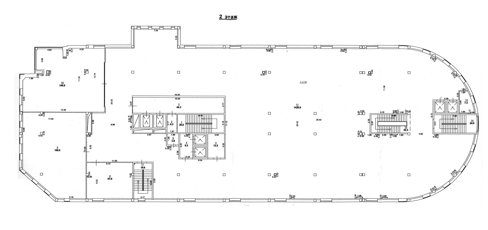
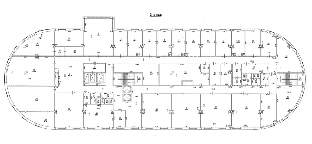
Характеристики объекта

Комплекс оснащен инженерными системами:

- Система центрального водоснабжения и канализации, централизованное электроснабжение 220/380В, газовая котельная, собственная ТП 1 МВт;

- Система пожаротушения, система пожарной сигнализации и аварийного оповещения, пожарные резервуары с запасами воды располагаются на территории ТЦ;

- Система центрального кондиционирования и вентиляции, инженерные сети;

- 4 пассажирских лифта и 2 грузовых лифта для подъема товара;

- Зона погрузки-выгрузки крупногабаритной продукции с уравнительной платформой;

- Оптико-волоконные телекоммуникации;

- Видеонаблюдение территории комплекса и торгового центра;

- Наружное освещение прилегающей территории;

- Выделанная парковка для гостей торгового центра.

61:44:0022301:51
кадастровый номер объекта
3 этажа
торговых площадей
Парковка
отдельная парковка для гостей торгового центра
4-й уровень
сформирован как офисный центр с отдельным входом
Электроэнергия
трансформаторная подстанция 1 МВт
Эксплуатируемая кровля
1800 кв.м. для организации креативного пространства

Арендаторы торгового центра

Арендатор Арендуемая площадь (м2) Срок договора
Гипермаркет низких цен «Маяк» 1 800  до 21.09.2030
Секонд Хенд «ЗигЗаг Удачи» 3 780  до 30.04.203
Аптечная сеть «Ригла» 330  до 16.08.2030 
Федеральные и региональные компании, индивидуальные предприниматели – аренда офисного центра 1 020  на 11 месяцев

 

Фото торгового центра

Инвестиции в данный объект недвижимости – это выгодный шаг к успешному бизнесу! Все арендаторы имеют безупречную репутацию и стабильную финансовую историю. Долгосрочные договора аренды гарантируют защиту ваших инвестиций и отсутствие простоя.

Коммерческие условия 

Цена продажи: 500 000 000 рублей с НДС.

Средняя доходность объекта на 2024 год составляет 53 000 000 рублей в год.
Ввиду активной комплексной застройки и перспективного развития Восточной части города, прогнозируемая доходность объекта возрастет в 1,5 -2 раза в ближайшие 3-5 лет.

Готовы обсуждать индивидуально условия реализации объекта.

Мы так же рады предложить уникальную возможность

Приобрести часть нежилых помещений в рамках Торгового центра.

Ликвидная площадь 1-2 этажей, общей площадью 3 780 кв.м. с долгосрочным Арендатором.

Доходность 36 000 000 рублей/год.

Срок окупаемости 7 лет.

Стоимость продажи 250 000 000 рублей с НДС.